


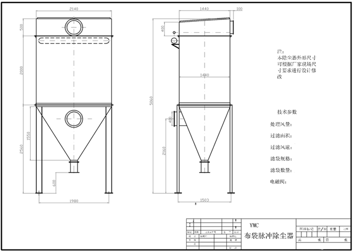
項目 | 技術參數 | 單位 |
80袋脈沖布袋除塵器 | DMC-80 | 臺 |
處理風量 | 4608 | M³/H |
全過濾面積 | 64 | m2 |
全過濾風速 | 1.2 | m/ min |
脈沖閥數量 | 8 | 個 |
出口粉塵濃度 | <30 | mg/Nm3 |
除塵效率 | ≥99.8 | % |
本體漏風率 | ≤2 | % |
設備阻力 | 1200 | Pa |
濾袋材質 | 滌綸針刺氈 | |
濾布紡織工藝 | 針刺 | |
濾布縫制工藝 | 三針機縫制 | |
濾袋規格 | Φ133×2000 | mm |
濾袋允許使用溫度 | ≤130℃ | ℃ |
袋籠規格 | Φ125*1990 | mm |
袋籠材質 | 碳鋼 | |
袋籠處理工藝 | 硅噴涂 | |
濾袋固定及密封方式 | 彈簧漲圈 | |
電磁脈沖閥型式及規格 | 1”直角閥 | |
清灰氣源壓力 | (5-7)×105 | Pa |
氣源品質 | 良好 | |
耗氣量 | 0.048 | m3/min |
清灰方式 | 在線清灰 | |
檢修方式 | 停機 | |
控制方式 | PLC自動;手動 | |
輸灰方式 | 不銹鋼手動插板閥 | |
引風機功率 | 7.5 | KW |


冀公網安備13098102000524號